logo large site bg
Wohnfläche
38 M2
Bauzeit
3 Monate
Interior
Naturholz
Preis
ab 2.000,- € / M2
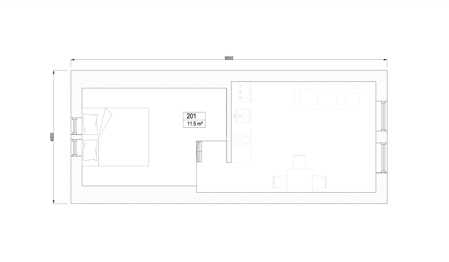
CUBE mit separatem Schlafraum

Nordic Single CUBE

Der Nordic Single CUBE bietet mit einer Wohnfläche von 38 m² eine kompakte und gemütliche Lösung für ein modernes Zuhause. Die Außenverkleidung besteht aus hochwertigen Fichtenholzpaneelen, die in Farbe und Textur individuell gestaltet werden können. Im Innenbereich stehen Fichtenholzpaneele oder Gipskartonplatten zur Auswahl, um den persönlichen Stil zu unterstreichen. Der Boden ist mit strapazierfähigem Laminat der Nutzungsklasse 33 ausgestattet, während im Badezimmer ein praktischer Vinylbelag verwendet wird.

Konfigurationsvarianten - Basic oder Premium

Eine 200 mm starke Rockwool-Isolierung in Wänden, Boden und Decke sorgt für ausgezeichnete Energieeffizienz und angenehme Temperaturen zu jeder Jahreszeit. Die stabile Rahmenkonstruktion aus dichtem Holz garantiert Langlebigkeit und Sicherheit. Hochwertige dreifach verglaste PVC-Fenster mit Profilen von “Rehau”, “Salamander” oder “Gealan” gewährleisten hervorragende Wärmedämmung und ein modernes Erscheinungsbild. Das Dach besteht aus robustem Metall der Marke “Ruukki”.

Das Haus wird mit vorinstallierter Elektroverkabelung, Wasserversorgung und Abwasserleitungen geliefert. Türen für den Eingangs- und Innenbereich sind im Standard enthalten. Optional können Küchenmöbel mit allen notwendigen Geräten sowie eine vollständige Badezimmerausstattung hinzugefügt werden. Darüber hinaus besteht die Möglichkeit, den Grundriss individuell anzupassen.

Für zusätzlichen Komfort kann das Haus mit einer Treppe zu einer zweiten Etage ergänzt werden. Auf der zweiten Etage bietet ein optionaler Holzzaun eine sichere und stilvolle Begrenzung.

Der Nordic Single CUBE vereint Funktionalität, hochwertige Materialien und flexible Gestaltungsmöglichkeiten für ein individuelles Wohnkonzept.

  1. Deutschlandweite Lieferung und Aufbau
  2. Zahlbar in Stufen
  3. Zu 100% aus eigener Produktion

Entdecken Sie weitere Cubes