logo large site bg
Wohnfläche
59,9 M2
Bauzeit
6 Monate
Interior
Naturholz
Preis
ab 2.000,- € / M2
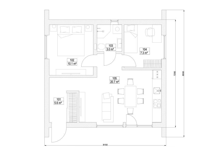
CUBE mit zwei Schlafräumen

Skara 60 CUBE

Der Skara 60 CUBE bietet mit einer Grundfläche von 59,9 m² eine kompakte und dennoch komfortable Wohnlösung. Sowohl die Außen- als auch die Innenverkleidung bestehen aus Fichtenholzpaneelen, die in Farbe und Textur individuell gestaltet werden können. Der Boden ist mit Laminat ausgestattet, während im Badezimmer ein Vinylbelag verwendet wird.

Konfigurationsvarianten - Basic oder Premium

Für eine optimale Wärmedämmung sorgen 200 mm starke Rockwool-Isolierungen in den Wänden, dem Boden und der Decke. Die stabile Rahmenkonstruktion besteht aus dichtem Holz, was dem Haus eine hohe Robustheit verleiht. Hochwertige dreifach verglaste PVC-Fenster sowie Eingangs- und Innentüren sind ebenfalls enthalten. Das Dach besteht aus langlebigem Metall der Marke “Ruukki”.

Das Haus wird mit bereits installierter Elektroverkabelung, Wasserversorgung und Abwasserleitungen geliefert. Optional können Küchenmöbel mit allen Geräten sowie Badezimmerausstattung, einschließlich Armaturen, hinzugefügt werden. Zudem besteht die Möglichkeit, den Grundriss individuell anzupassen, um den persönlichen Bedürfnissen gerecht zu werden.

Der Skara 60 CUBE kombiniert hochwertige Materialien und praktische Gestaltungsmöglichkeiten für ein maßgeschneidertes Wohnerlebnis.

  1. Deutschlandweite Lieferung und Aufbau
  2. Zahlbar in Stufen
  3. Zu 100% aus eigener Produktion

Entdecken Sie weitere Cubes